|
中古一戸建て
[価格]
1,630万円
|
||||
|---|---|---|---|---|
| 種目 | 物件名 | 沿線 駅名 |
土地面積(坪) 建物面積(坪) |
建物構造 間取 |
| 中古一戸建て | 【不動産 / 中古一戸建て】 桶川市上日出谷南1-78-1 |
JR高崎線・湘南新宿ライン・上野東京ライン 桶川駅 |
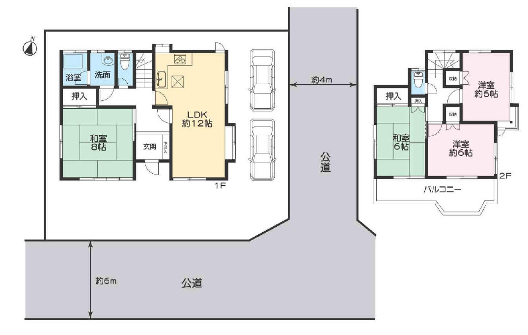
35.15坪 27.24坪 |
木造瓦葺 4LDK |

| 物件番号 | 42658 | 土地権利 | 所有権 |
|---|---|---|---|
| 物件名 | 桶川市上日出谷南1-78-1 | 建築確認番号 | |
| 住所1 | 桶川市上日出谷南1丁目 | 住所2 | 78-1 |
| 交通 | JR高崎線・湘南新宿ライン・上野東京ライン 桶川駅まで 徒歩24分 | ||
| バス停手段 | |||
| 土地面積(坪) | 35.15坪 | セットバック面積(坪) | |
| 地目 | 宅地 | 現況 | 空家 |
| 地勢 | 私道面積 | - | |
| 建物構造 | 木造瓦葺 | 西暦築年月 | 1987/01 |
| 建物面積(坪) | 27.24坪 | 間取 | 4LDK |
| 階建て | 2 | 駐車場 | 有 |
| 接道(全て) | 南 6m(幅員) 東 4m(幅員) |
||
| 都市計画 | 市街化区域 | 国土法届出 | 不要 |
| 用途地域1 | 第一種住居地域 | 用途地域2 | 第一種中高層住居専用地域 |
| 建ぺい率1 | 60% | 建ぺい率2 | 60% |
| 容積率1 | 200% | 容積率2 | 200% |
| 小学校区(距離) | 日出谷小学校 700m | 中学校区(距離) | 桶川西中学校 1,300m |
| 特色 | 公営水道、浄化槽、都市ガス、【築年】 昭和、南道路、角地、駐車場2台以上 | ||
| 上尾市:不動産周辺状況 | |||
| 取引条件有効期限 | 2026年01月22日 | ||
|
地図を右クリックでルート検索が可能です。
|