大正団地第弐 6号棟 4階

価格 670万円

1/2

物件番号「37480」をお伝えください。

電話でお問合せ

物件情報

価格 670万円
物件名フリガナ 【不動産 / 投資】
種目 マンション
物件名 大正団地第弐 6号棟 4階
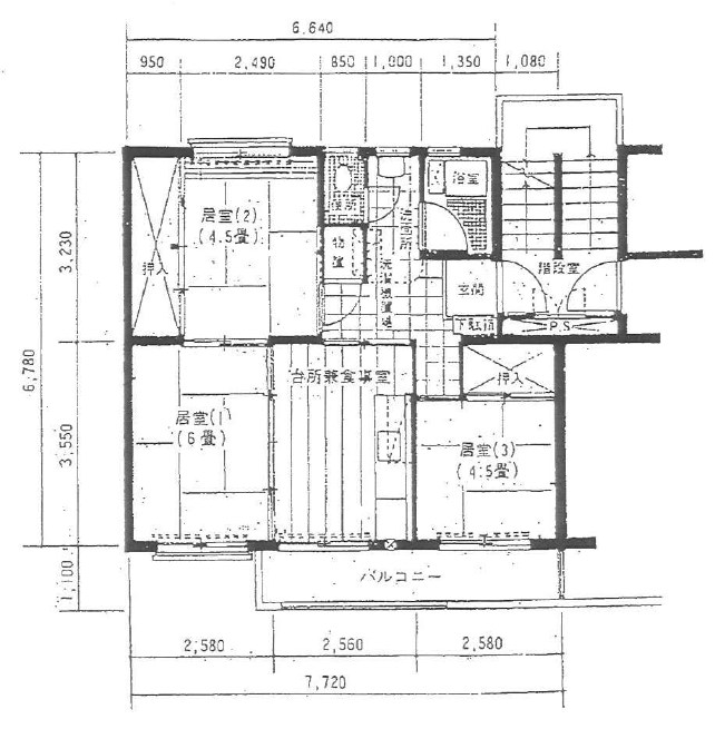
専有面積 48.85m²
間取 3DK
階/階建 4階/地上5階建
住所1
神奈川県横浜市戸塚区原宿3丁目 地図
住所2 57
コメント 神奈川県横浜市戸塚区原宿3丁目のマンション:大正団地第弐

★オーナーチェンジ物件

★4階部分南東向きにつき日当たり・通風・眺望良好です

★小学校・中学校ともに徒歩10分以内!

★3DKタイプ

★5階建ての号棟間には駐車場や芝生、複数の児童公園があります。植栽が豊富で鳥の囀りも絶えないゆとりの空間です

★周辺は閑静な戸建住宅地となっており、徒歩5分圏内には病院、保育園、小学校、中学校、スーパーマーケット、ドラッグストア、コンビニエンスストアなどがあり、生活しやすい環境が整っています

★施工会社:日本住宅公団(現UR都市機構)

★戸塚駅や大船駅からそれぞれ神奈川中央交通バスで15分圏です。JR東海道本線・横須賀線・湘南新宿ラインのほか、戸塚駅からは横浜市営地下鉄ブルーラインも利用できます【JR東海道本線・横浜市営地下鉄 戸塚駅よりバス13分 大連寺下車 徒歩5分。JR京浜東北・根岸線 大船駅よりバス16分 三叉路下車 徒歩3分】

★国立病院機構 横浜医療センター徒歩3分(約220m)

★ダイソー 横浜戸塚原宿店徒歩7分(約450m)
西暦築年月 1969/05
年間収入 60万円
現状・予想
利回り 8.95%
建物構造 鉄筋コンクリート造
交通 その他 その他まで バス13分 停歩5分
その他 その他まで バス16分 停歩3分
特色 駐車場、オーナーチェンジ、公営水道、公共下水、都市ガス、電気
修繕積立費 9,000円
管理費 7,000円
管理組合
管理形態 自主管理
管理人状況 日勤
管理会社
諸費用(全て)
棟総戸数 780戸
バルコニ面積 6m²
バルコニ方向 南東
引渡時期 相談
取引態様
不動産周辺状況
※掲載されている物件データが現状と異なる場合は現状を優先します。
※利回りは、1年間の賃料収入を除して求めたものです。
※表示の賃料収入が将来にわたり確実に得られる保証はございません。
※利回りは、公租公課・共益費等、該当物件を維持するために必要な費用を控除する前の収入で計算しています。

更新情報

情報更新日 2026年03月09日
次回更新予定日 2026年03月10日
取引条件有効期限 2026年03月09日

物件番号「37480」をお伝えください。

電話でお問合せ
電話でお問合せ メールでお問合せ
簡易お問合せ

お名前


メールアドレス


問合せ内容


OK