|
||||||
| 種目 | 物件名 | 土地面積(坪) 建物面積(坪) |
構造 間取 |
築年月 土地権利 |
||
|---|---|---|---|---|---|---|
| 中古一戸建て (住宅) |
【不動産/中古一戸建て住宅】 上尾市愛宕3−6−3 |
76.76m2(23.21坪) 101.84m2(30.8坪) |
木造 3LDK |
R04/09 所有権 |
||
【不動産/中古一戸建て住宅】上尾市愛宕3−6−3
上尾市愛宕3丁目の中古一戸建て
★上尾駅徒歩15分
★3LDKの3階建て
★バリュープラザ上尾愛宕店、イオンモール上尾まで徒歩3分(約250m)で買物便利!
★LDK約17.1帖
★全居室収納あり
★境界:確定済
★セットバックあり
★前面道路は狭いですが、車も多くは通らないので、静かに生活そうです
★上尾中学校徒歩2分
★上尾運動公園徒歩6分(約450m)
| 物件番号 | Bk43404 | |||
|---|---|---|---|---|
| 物件名 | 上尾市愛宕3−6−3【不動産/中古一戸建て住宅】 | |||
| 価格履歴 | ||||
| 種別 | 売一戸建て住宅 | 種目 | 中古一戸建て住宅 | |
| 住所1 | 上尾市愛宕3丁目 | 住所2 | 6−3 | |
| 交通 | JR高崎線・湘南新宿ライン・上野東京ライン 上尾駅まで 徒歩15分 JR高崎線・湘南新宿ライン・上野東京ライン 上尾駅まで バス6分 停歩1分 |
|||
| バス便 | JR高崎線 上尾駅より乗車6分「上尾運動公園」停下車/停歩1分 | |||
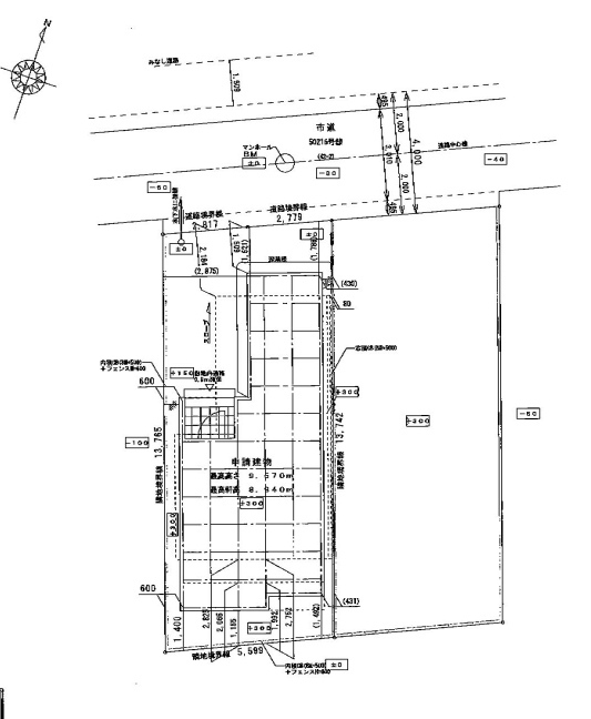
| 土地面積 | 76.76m2(23.21坪) | セットバック面積 | ( ) | |
| 地目 | 宅地 | 現況 | 空家 | |
| 地勢 | 平坦 | 私道面積 | -(-) | |
| 建物構造 | 木造 | 和暦築年月(築年数) | R04/09 ( 築3年 ) | |
| 建物面積 | 101.84m2(30.8坪) | 間取 | 3LDK | |
| 階建 | 3階 | 駐車場 | 有 | |
| 接道 | 北西 4m(幅員) 公道 | |||
| 都市計画 | 市街化区域 | 国土法届出 | 不要 | |
| 用途地域1 | 第一種住居地域 | 建ぺい率1 / 容積率1 |
60% / 160% | |
| 用途地域2 | 建ぺい率2 / 容積率2 |
/ | ||
| 学区(小学校) | 上尾小学校 1000m | 学区(中学校) | 上尾中学校 140m | |
| 取引様態 | 仲介 | 引渡時期 | 相談 | |
| 土地権利 | 所有権 | 借地料 | - | |
| 建築確認番号 | 第SJK-KX215634670号 | 取引条件有効期限 | 令和08年1月22日 | |
| 特色 | 【不動産/中古一戸建て住宅】上尾市愛宕3−6−3: 公営水道、公共下水、都市ガス、駐車場、TVモニター付インターホン、システムキッチン、ウォークイン・クローゼット、【築年】 令和(2019)〜 | |||
| 周辺環境 | 【不動産 /中古一戸建て住宅】 上尾市愛宕3−6−3 (上尾地区:東口方面) 上尾地区:東口方面区の主な施設 上尾運動公園 さいたま水上公園 県立武道館 埼玉アイスアリーナ 極楽湯 上尾店 ラウンドワンスタジアム上尾店 上尾市平塚サッカー場 ゴルフプラザ伊奈(隣接) クレイン伊奈(乗馬) 丸広百貨店 上尾店 ビッグエー上町店 スーパーバリュー上尾緑丘店 P・A・P・A上尾ショッピングアヴェニュー トライアル上尾本町店 やまや上尾店 やおひろ東店 ベルク上尾東店 やおひろA-GEOタウン店 A-GEOタウン コープ二ツ宮店 業務スーパー上尾愛宕店 バリュープラザ上尾愛宕店 ヤマダ電機テックランド上尾店 イオンモール上尾(2020年以降開業予定) 大宮市場(隣接) 上尾市役所 上尾市図書館 上尾図書館 駅前分館 上尾市文化センター 上尾公民館 上尾消防本部 東消防署 上尾愛宕郵便局 上尾宮本町郵便局 上尾二ツ宮郵便局 埼玉りそな銀行 上尾支店 武蔵野銀行 上尾支店 埼玉縣信用金庫 上尾支店 さいたま農協 上尾支店 東和銀行 上尾支店 藤村病院 上尾アーバンクリニック あげお愛友の里 藤の郷あげお 放課後デイサービス「おともだち」上尾 上尾保育所 あたご保育所 緑丘保育所 上尾幼稚園 上尾みどりが丘幼稚園 上尾寿第二幼稚園 ひかわ幼稚園 上尾小学童保育所 上尾小第二学童保育所 東小学童保育所 東小第二学童保育所 中央小学童保育所 中央小第二学童保育所 東町学童保育所 東町第二学童保育所 県立上尾特別支援学校 国道17号 旧中山道 バスは使い易い方ですが、駅に近いエリアのため必要性が高いというわけでは無いと思います。原市地区に近い上尾村や東町にはバス路線はありません。詳細は上尾駅東口バス路線図 上尾以南バス路線図にてご確認くださいませ。
|
ローンを組むにあたり、月々の返済額をシミュレーションします。
|
||
【不動産/中古一戸建て住宅】上尾市愛宕3−6−3
地図
|
地図を右クリックでルート検索が可能です。
|
位置情報に関するご注意:現在位置情報は可能な限り正確に入力致しておりますが、
仕様等により表示が正確ではない場合があります。
あくまでもご参考となさって頂けましたら幸いです。
![]()
- 【不動産/中古一戸建て住宅】
上尾市愛宕3−6−3
へのお問い合わせは
ハーバルホーム株式会社
- TEL:048-770-1188
- FAX:048-770-1186
- >>関連の沿線・駅名から検索
- 物件一覧 -- JR高崎線・湘南新宿ライン・上野東京ライン 上尾駅 -- 間取一覧 -- 写真一覧 -- まわりの様子(地図から探す) -- まわりの様子(各種施設情報のみ)
- 物件一覧 -- JR高崎線・湘南新宿ライン・上野東京ライン 上尾駅 -- 間取一覧 -- 写真一覧 -- まわりの様子(地図から探す) -- まわりの様子(各種施設情報のみ)
- >>関連の上尾市:エリア別物件一覧から検索
- 上尾市:エリア別物件一覧 -- 上尾市
JR 高崎線・湘南新宿ライン・上野東京ライン
上尾駅・北上尾駅・桶川駅・宮原駅エリア 売一戸建て -- 間取一覧 -- 写真一覧 -- まわりの様子(地図から探す) -- まわりの様子(各種施設情報のみ)

・・・新着3日以内
・・・新着2週間以内
・・・価格変更1ヶ月以内













































































































































上尾運動公園
