| 物件番号 写真画像 |
物件名 - |
価格 | 駅名 和暦築年月 |
バス 徒歩 |
土地面積m2(坪) 建物面積m2(坪) |
間取 間取画像 |
詳細 | 画像 |
|---|---|---|---|---|---|---|---|---|
| Bk44583 |
【不動産 / 中古一戸建て】 上尾市上尾下672−6 |
1,800万円 | 沼南駅 S62/11 |
− 14分 |
132.78m2 ( 40.16坪 ) 87.36m2 ( 26.42坪 ) |
5DK |
|
![]() ![]()
|
| 上尾市上尾下の中古一戸建て ★埼玉新都市交通伊奈線(ニューシャトル線)原市駅徒歩10分 ★昭和62年11月築の5DK ★室内大変綺麗です ★各階にトイレあり ★敷地40坪以上 ★敷地東側の建物(アパート)が離れているため、日当たりがとても良いです ★路地状敷地ですが、隅切りがあるため車の出し入れがしやすいです ★本下水は前面道路に埋設管あり。分担金は支払い済みです ★セットバック 済 ★東町小学校、上尾中学校のほか、原市小学校(1200m)、原市中学校(1200m)も選択可能です ★取引にあたり、契約不適合責任(売主が取引対象の不具合や不都合に対して負う責任)は免責される条件となります ★五番町第二公園徒歩3分(約230m) ★徒歩圏にはさいたま水上公園や埼玉アイスアリーナ、埼玉県立武道館などがあり、散歩や運動が楽しめます ★第二産業道路近くアクセス良好! |
||||||||
Bk45290 |
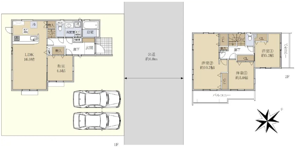
【不動産 / 新築一戸建て】 上尾市上尾下803−46 |
![]() 2,430万円 |
沼南駅 R07/08 ![]() |
− 18分 |
121.04m2 ( 36.61坪 ) 95.58m2 ( 28.91坪 ) |
3LDK |
|
|
| 上尾市上尾下の新築一戸建て ★埼玉新都市交通伊奈線(ニューシャトル線)原市駅徒歩18分 |
||||||||
| Bk44465 |
【不動産 / 新築一戸建て】 上尾市上尾下第2 3号棟 |
![]() 2,680万円 |
沼南駅 R07/12 ![]() |
− 16分 |
125.7m2 ( 38.02坪 ) 100.44m2 ( 30.38坪 ) |
3LDK |
|
|
| 上尾市上尾下の新築一戸建て ★全5棟 ★玄関収納付き3LDK ★対面キッチンのLDKは18帖です ★インナーバルコニー約7.29m²は2部屋から出入りが可能です ★各居室内に収納があります ★私道持分1/6あり ★協定地約12.65m²は土地面積に含まれます ★子育てグリーン住宅支援事業対象物件です ★ニューシャトル線沼南駅徒歩約16分 ★あおぞら保育園徒歩4分(約280m) ★埼玉アイスアリーナ徒歩7分(約500m) ★第二産業道路へのアクセス良好です |
||||||||
| Bk44944 |
【不動産 / 新築一戸建て】 上尾市上尾下4期 B号棟 |
![]() 2,990万円 |
沼南駅 R07/12 ![]() |
− 20分 |
128.33m2 ( 38.81坪 ) 99.78m2 ( 30.18坪 ) |
4LDK |
|
![]() ![]() ![]()
|
| 上尾市上尾下の新築一戸建て ★4LDKタイプ ★対面キッチンのLDKは約18.5帖です ★パントリー・稼働棚・床下収納付きのため、収納豊富です ★敷地内に電柱または支線が入る場合があります ★IDS工法 ★最長30年保証 ★セットバック済 ★敷地角にゴミ置き場あり ★東町小学校徒歩8分 ★妙厳寺幼稚園徒歩7分(約500m) ★あおぞら保育園徒歩6分(約500m) ★さいたま水上公園徒歩6分(約500m) |
||||||||
Bk45412 |
【不動産 / 新築一戸建て】 上尾市上尾下703−6 |
3,299万円 | 沼南駅 R08/06 ![]() |
− 13分 |
106.65m2 ( 32.26坪 ) 99.36m2 ( 30.05坪 ) |
3LDK |
|
![]()
|
| 上尾市上尾下の新築一戸建て ★埼玉新都市交通伊奈線(ニューシャトル線)原市駅徒歩13分 ★南東道路に面しているため日当たり良好 ★木造2階建て3LDKタイプ ★南東側約4m²公道(セットバック後・持分10m²×1/3) ★東町小学校、上尾中学校のほか、原市小学校(1100m)、原市中学校(1300m)も選択可能ですす ★陣屋公園徒歩2分(約150m) ★イオンモール上尾まで約1600mで買い物便利 ★徒歩圏内にはさいたま水上公園や県立武道館、アイスアリーナがあり、散歩や運動も楽しめます ★第二産業道路や国道17号アクセス良好!商業施設や飲食店多数あり生活便利 ★電波障害等によるケーブルTV・共聴アンテナの申込みはお客様の負担となります ★TVアンテナ・網戸・照明器具・カーテンレール・面格子はつきません ★電気供給のため敷地内に電線・支線が入る場合があります ★図面と現況に相違がある場合は現況を優先とします ★当社指定の司法書士を利用していただきます(登記費用が必要となります) ★フラット35S利用の場合、別途手数料が必要となります |
||||||||
| Bk36854 |
【不動産 / 中古一戸建て】 北足立郡伊奈町栄3−64 |
3,500万円 | 沼南駅 H02/03 |
− 29分 |
221m2 ( 66.85坪 ) 166.59m2 ( 50.39坪 ) |
5LDK |
|
![]() ![]()
|
| 北足立郡伊奈町伊奈町栄3丁目の中古一戸建て ★平成2年3月築の木造2階建 ★敷地広々66坪以上の整形地! ★玄関を開けると素敵な中庭があり、吹きぬけが気持ちいいです。リビングやお風呂などにも面していて、なかなか出来ない体験をなさって頂けそうです ★とても大きな5LDK ★お風呂にサウナルームあり ★収納豊富です ★とても広いグルニエ(小屋裏収納)あり ★二階にミニキッチンあり ★敷地南隣地には現況建物がなく、日当たりも大変良いです ★セントラルクリーニング完備(機器の動作状況によってはユニット交換が必要です) ★伊奈町立南小学校徒歩10分 ★津地児童公園徒歩1分(約44m) ★ビッグ・エー 伊奈栄店徒歩3分(約200m) ★伊奈町ふれあい活動センター ゆめくる徒歩4分(約290m) |
||||||||
| Bk44324 |
【不動産 / 新築一戸建て】 上尾市原市 全1棟 |
![]() 3,798万円 |
沼南駅 R07/12 ![]() |
− 7分 |
174.68m2 ( 52.84坪 ) 97.3m2 ( 29.43坪 ) |
3LDK |
|
![]() ![]() ![]()
|
| 上尾市原市の新築一戸建て ★大変珍しい平屋の分譲住宅です。ご自分で注文住宅を建築する以外に、平屋を手に入れる方法は殆どないので、興味のある方はかならずご検討ください。それにしても久しぶりに販売されましたね ★敷地広々52坪以上! ★3LDKですが、壁を設置することで4LDKにも対応可能な設計です ★「子育てグリーン住宅支援事業」対象物件です ★埼玉新都市交通伊奈線(ニューシャトル線)沼南駅徒歩7分 ★南西道路に面しているため日当たり良好 ★LDK約17帖 ★4LDK可変型(10.5帖の洋室を、将来こども部屋として2つの部屋にアレンジできます/仕切壁工事は別途費用がかかります) ★ (はらいち団地地区)★荒川流域0.5から3m未満の浸水区域に該当しています ★原市台公園徒歩2分 ★第二産業道路へのアクセス良好です ★東栄住宅の家造り |
||||||||
| Bk44306 |
【不動産 / 新築一戸建て】 上尾市原市北1丁目 2期 全1棟 |
4,098万円 | 沼南駅 R07/12 ![]() |
− 3分 |
108.61m2 ( 32.85坪 ) 101.64m2 ( 30.74坪 ) |
3LDK |
![]()
|
|
| 上尾市原市北1丁目の新築一戸建て ★埼玉新都市交通伊奈線(ニューシャトル線)徒歩3分! ★小・中学校ともに10分以内! ★4LDKに変更可能な3LDK ★折り上げ天井対面キッチンのLDKは18帖です ★2階ワイドバルコニーは2部屋から出入りでき通風・見晴らし良好です ★ウォークインクローゼットもあり収納豊富です ★子育てグリーン住宅補助金80万円対象物件です ★太陽光発電システムはリース契約となります。リース期間は10年間、毎月の利用料金は8756円(税込)でリース期間終了後無償譲渡されます ★南西向きにつき日当たり良好! ★司法書士は売主指定となります ★目の前が公園となっています ★区画整理地内につき 原市北部第二地区東栄住宅の家造り |
||||||||
| Bk44314 |
【不動産 / 新築一戸建て】 上尾市原市1780−12 |
4,798万円 | 沼南駅 R08/02 ![]() |
− 8分 |
156m2 ( 47.19坪 ) 100.6m2 ( 30.43坪 ) |
4LDK |
|
![]() ![]() ![]()
|
| 上尾市原市の新築一戸建て ★駐車スペース2台分付きの4LDK ★対面キッチンのLDKは約16帖です ★2階は2面バルコニーで日当たり、通風良好です ★リビング、トイレにエコカラットダウンライト付きです ★47坪以上の整形地 ★北東側6m公道に面しています ★はらいち台団地地区の地区計画あり ★沼南駅徒歩8分 ★沼南駅前からバス利用も可能ですが、本数も少なく現実的ではありません。 ★市街化調整区域ですが、集団的宅地の区域につきどなたでも再建築可能です(諸条件有り) ★原市台公園徒歩1分(約76m) ★第二産業道路へのアクセス良好です 東栄住宅の家造り |
||||||||





Bk45290

Bk45412

