★こちらは上尾市における【新築・中古一戸建て住宅】の販売事例集です。★
不動産(マンション・一戸建て・土地など)を
売りたいとき、買いたいとき、
物件価格/相場の目安として是非ご活用ください。
現在販売中の物件だけでなく、
すでに成約してしまった物件についてもわかるので
とても便利ですよ。
上尾市久保
新築一戸建て H28/06
Bk8016
物件所在地:上尾市久保


交通 :JR高崎線・湘南新宿ライン・上野東京ライン北上尾駅 徒歩14分
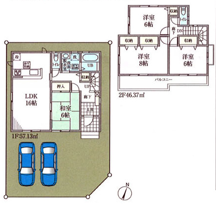
敷地面積 :130.12㎡(39.36坪)
建物延床面積 :103.5㎡(31.3坪)
建物構造 :木造在来軸組工法(910モジュール)
建築年月 :2016/06
間取り :4LDK
用途地域 :第一種低層住居専用地域
建ぺい率 :50%
容積率 :80%
接道状況 :二方
北東 4.5m(幅員) 公道
南東 4.5m(幅員) 公道
特色 :公営水道、公共下水、都市ガス、南道路、駐車場2台以上、10年保証、フラット35対応、浴室乾燥機、ウォッシュレット付トイレ、シャワー付き洗面化粧台、システムキッチン、TVモニター付インターホン、ペアガラス採用、耐震・免震構造、角地
上尾市久保エリアで現在販売中の新築一戸建てを調べたいならこちら
最終確認日 :価格
2016/04/28:3,080万円
成約前に確認できた最終価格を表示しております。
成約済み物件の売買金額は、価格交渉などがあった場合、
記載された金額とは異なる場合がございますのでご了承くださいませ。

★オーナー様へ 「気を付けましょう!どんどん広告して欲しいのに不動産業者が勝手に広告を制限している場合があります」★
ハーバルホーム株式会社
所属団体
(公社)全日本不動産協会
(公社)不動産保証協会
(公社)首都圏不動産公正取引協議会
〒362-0001 埼玉県上尾市上62-13
フリーダイアル 0120-38-8086(さぁ ハーバル)
E-mail info@herbal-home.net
免許証番号 埼玉県知事免許(2)第22277号
