★こちらは上尾市における【新築・中古一戸建て住宅】の販売事例集です。★
不動産(マンション・一戸建て・土地など)を
売りたいとき、買いたいとき、
物件価格/相場の目安として是非ご活用ください。
現在販売中の物件だけでなく、
すでに成約してしまった物件についてもわかるので
とても便利ですよ。
上尾市南
新築一戸建て R04/08
Bk31532
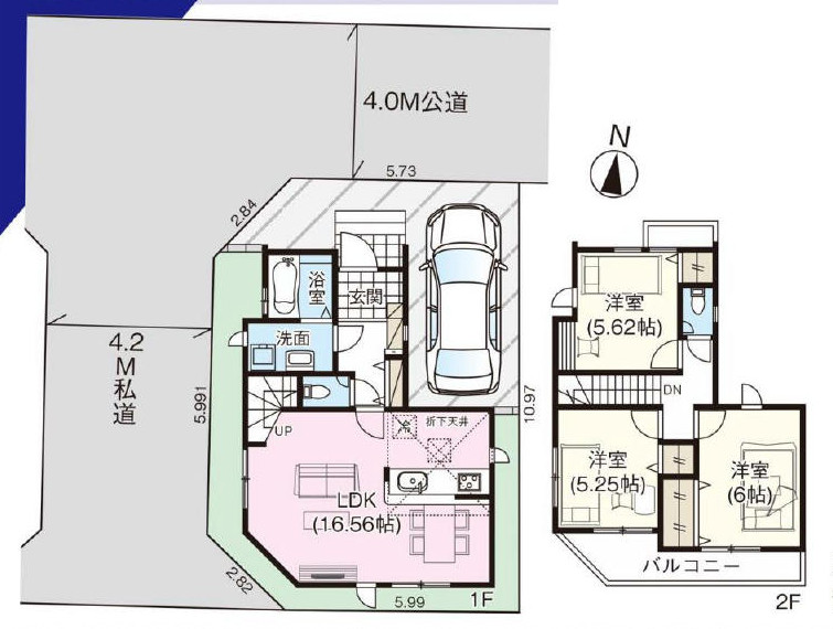
物件所在地:上尾市南


敷地面積 :82.44㎡(24.93坪)
建物延床面積 :81.04㎡(24.51坪)
建物構造 :木造
建築年月 :2022/08
間取り :3LDK
用途地域 :第一種低層住居専用地域
建ぺい率 :60%
容積率 :100%
接道状況 :二方
北 4m(幅員) 公道 7.57m(接面)
西 4.2m(幅員) 私道 5.991m(接面)
特色 :公営水道、プロパンガス、住宅性能評価書取得(予定)、10年保険付属、フラット35対応、耐震・免震構造、シャワートイレ、シャンプードレッサー、システムキッチン、TVモニター付インターホン、ペアガラス採用、公共下水、【築年】 建築中、角地、住まい給付金対象物件、浴室乾燥機
上尾市南エリアで現在販売中の新築一戸建てを調べたいならこちら
最終確認日 :価格
2022/10/01:2,590万円
成約前に確認できた最終価格を表示しております。
成約済み物件の売買金額は、価格交渉などがあった場合、
記載された金額とは異なる場合がございますのでご了承くださいませ。

★オーナー様へ 「気を付けましょう!どんどん広告して欲しいのに不動産業者が勝手に広告を制限している場合があります」★
ハーバルホーム株式会社
所属団体
(公社)全日本不動産協会
(公社)不動産保証協会
(公社)首都圏不動産公正取引協議会
〒362-0001 埼玉県上尾市上76-6
フリーダイアル 0120-38-8086(さぁ ハーバル)
E-mail info@herbal-home.net
免許証番号 埼玉県知事免許(3)第22277号














































