| 物件番号 写真画像 |
物件名 物件名フリガナ |
価格 | 駅名 住所1 |
バス 徒歩 |
土地面積m2(坪) 建物面積m2(坪) |
接道 | 間取画像 | 詳細 | 画像 |
|---|---|---|---|---|---|---|---|---|---|
| Bt40066 |
上尾市畔吉908−1 【不動産 / 土地】 |
3,600万円 | 北上尾駅 上尾市畔吉 |
− 46分 |
792m2 ( 239.58坪 ) |
北西 6.4m(幅員) 公道 21m(接面) 南 9m(幅員) 公道 19.7m(接面) |
|
![]() ![]()
|
|
| 上尾市畔吉の土地 ★広々239坪以上! ★北西と南の両面道路!日当たり・見晴らし良好! ★飲用水の宅地引き込みなし ★市街化調整区域につき建築できません ★クリニックまたは福祉や沿道サービス業などの公共的な事業用地として、あるいは近くで事業をなさっている方が立ち退きを迫られた場合などやむを得ない事情が認められた際には、建築ができる場合があります。 ★取得目的に建物の建築を含む場合には、上尾市開発許可に関する手引きをご参照下さい…@ ★行政との摺り合わせに行政書士などを利用する際には、可否にかかわらず、着手時に依頼費用などがかかります ★農地のため行政の農地転用許可なしには、取得することすら出来ません ★居宅の用地としてお考えの場合、さらに厳しい制限があります。埼玉県では、市街化調整区域内に長期(20年以上)居住している親族がある場合でも、建築するための土地が一定範囲の親族が所有している土地でない限り、建築が許可されなくなりました(2022年4月より)。そのため親族以外から購入するなどした市街化調整区域の農地でのの居宅建築はほとんど無理だとお考えください。公共移転(公共道路の建築等により転居を余儀なくされること)等が、残された唯一の可能性と言えるでしょう ★農業振興地域につき、農地転用の許可以外に、適用除外の手続きが必要となります。農地以外の用途での利用は難しく、可能な場合であっても1〜2年ほど期間が掛かります。申請月は3月と9月です ★上尾丸山公園まで約1100m ★上尾道路沿いにつきアクセス良好 |
|||||||||
| Bt33612 |
上尾市南91−1 【不動産 / 土地】 |
3,980万円 | 北上尾駅 上尾市南 |
− 19分 |
234m2 ( 70.78坪 ) |
北 4m(幅員) 公道 13.4m(接面) |
|
![]() ![]()
|
|
| 上尾市南の土地 ★70坪以上の整形地! ★道路の反対側は上平小学校のグラウンドに面しています ★北側4m公道。敷地が広いので、北に駐車場を作っても、南側にお庭が出来そうです。日当たりもとても良いでしょう ★敷地脇に細い通路あり。通路の東は農地でした ★建築条件はありませんのでお好きな住宅メーカーで建築が可能です ★都市計画道路/3・3・16上尾久喜線(計画決定)。事業決定の見通しなし ★区画整理地内につき (上平弟二地区)★小学校・中学校ともに徒歩10分以内! ★べにばな公園徒歩3分(約260m) ★上尾市上平支所徒歩3分(約250m) |
|||||||||
| Bk44848 |
上尾市小敷谷880−62 【不動産 / 中古一戸建て】 |
3,980万円 | 上尾駅 上尾市小敷谷 |
− 34分 |
235.62m2 ( 71.27坪 ) 96.99m2 ( 29.33坪 ) |
北 6m(幅員) 公道 15.924m(接面) 東 5m(幅員) 公道 13.685m(接面) |
|
![]() ![]()
|
|
| 上尾市小敷谷の中古一戸建て ★昭和52年築の平屋建て3SLDK ★フルリフォーム(2025年3月)【・システムキッチン、温水洗浄便座、シャンプードレッサー】 ★追い焚き付き給湯 ★屋根裏収納あり ★71坪以上!この立地でこんなに広いなんて、すてきな物件ですね ★二方向道路角地。どちらの道路も道路幅員が広目です ★駐車場敷地内並列4台可能です ★閑静な住宅街。基本的に居住者以外による通過交通が全くない分譲地です ★建築協定あり(三井サニータウン)。分割は不可となります ★以前は歯科医院だったようです ★アリオ上尾約900mで買い物便利 ★サンドラッグ上尾店徒歩4分(約300m) ★小泉中央公園徒歩4分(約300m) ★上尾道路近くアクセス良好 |
|||||||||
| Bk44589 |
上尾市向山11期 全2棟 1号棟 【不動産 / 新築一戸建て】 |
4,080万円 | 上尾駅 上尾市向山3丁目 |
− 19分 |
106.41m2 ( 32.18坪 ) 95.84m2 ( 28.99坪 ) |
北西 4m(幅員) 公道 9.46m(接面) 北東 4m(幅員) 公道 10.66m(接面) |
|
![]() ![]()
|
|
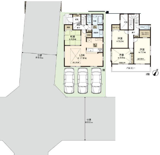
| 上尾市向山3丁目の新築一戸建て 「グラファーレ上尾市向山11期」 ★全2棟 ★ウォークインクローゼット付きの4LDK ★折り上げ天井対面キッチンのLDKは16帖です ★南東向きのため日当たり良好 ★ウォークインクローゼット2ヶ所など収納豊富です ★北西・北東角地! ★さくら公園徒歩2分(約190m) ★双葉台幼稚園徒歩7分(約550m) ★上尾市民体育館徒歩6分(約500m) ★コープみらい コープ今泉店徒歩7分(約550m) ★上尾道路近くアクセス良好! ※TVアンテナ・網戸・照明器具・カーテンレール・面格子はつきません ※網戸一式別途165000円(税込み) ※表題登記別途93500円(税込み) ※フラット35ご利用の場合における各種証明書取得代金が別途必要になります ※所有権移転登記手続きにおいて当社指定の司法書士・土地家屋調査士を利用していただきます。
(大谷北部第三地区)★グラファーレ(タクトホーム)の紹介 ★グラファーレ(タクトホーム)の仕様 ★タクトホームのオプション ★タクトホーム マイセレクト ★マイセレクト紹介動画 |
|||||||||
| Bt34204 |
上尾市井戸木2−18−2 【不動産 / 土地】 |
4,090万円 | 桶川駅 上尾市井戸木2丁目 |
− 8分 |
159.81m2 ( 48.34坪 ) |
東 4m(幅員) 公道 18m(接面) 南 公道 |
|
![]() ![]()
|
|
| 上尾市井戸木の土地 ★桶川駅徒歩8分の好立地! ★二方向道路角地につき日当たり良好 ★広々48坪以上の整形地 ★井戸木2丁目は桶川駅に最も近い上尾市となります。ただでさえ販売される物件が少ない中、これ程の土地はなかなかお目にかかれません ★建築条件はありませんので、お好きな住宅メーカーで建築可能です ★おけがわマイン徒歩8分(約600m)で買い物便利 ★さいたま文学館徒歩4分(約280m) ★駅西口公園徒歩5分(約400m) |
|||||||||
| Bk44382 |
上尾市上10期 全1棟 【不動産 / 新築一戸建て】 |
![]() 4,199万円 |
桶川駅 上尾市上 |
− 12分 |
142.88m2 ( 43.22坪 ) 105.57m2 ( 31.93坪 ) |
南東 4m(幅員) 位置指定道路 16.297m(接面) |
|
![]() ![]() ![]()
|
|
| 上尾市上の新築一戸建て ★桶川駅徒歩12分の好立地! ★ウォークインクローゼット付きの4LDK ★対面キッチンのLDK約18.7帖です ★2階は2面バルコニーで通風も良好です ★ウォークインクローゼットのほか玄関土間収納もあり収納豊富です ★2階北西側は母屋さがりになります ★南東道路に面しているため日当たり良好 ★セットバック済:32.69m² ★ヨークマート 桶川店徒歩4分(約280m) ★国道17号アクセス良好!商業施設や飲食店多数あり生活便利 |
|||||||||
Bt45227 |
上尾市富士見2−124−4 【不動産 / 土地】 |
4,260万円 | 上尾駅 上尾市富士見2丁目 |
− 13分 |
176m2 ( 53.24坪 ) |
南 6m(幅員) 認定外道路 14.7m(接面) |
|
![]()
|
|
| 上尾市富士見の土地 ★上尾駅徒歩13分! ★53坪以上の整形地 ★現況アスファルト舗装の駐車場です ★現況でのお取引となります ★建築条件はないのでお好きな住宅メーカーで建築が可能です ★富士見小学校・西中学校ともに徒歩6分以内! ★富士見親水公園徒歩5分(約350m) ★近隣に商業施設が充実しています |
|||||||||
| Bk43846 |
上尾市泉台2丁目 2期 全1棟 【不動産 / 新築一戸建て】 |
4,398万円 | 桶川駅 上尾市泉台2丁目 |
− 23分 |
163.84m2 ( 49.56坪 ) 108.71m2 ( 32.88坪 ) |
南西 4m(幅員) 公道 北西 4m(幅員) 公道 |
|
![]() ![]() ![]()
|
|
| 上尾市泉台2丁目の新築一戸建て ★5LDKに変更可能な4LDK ★折り上げ天井対面キッチンのLDKは16帖です ★ウォークインクローゼットほか各居室内に収納があります ★カースペース3台分並列駐車可能です ★49坪以上の南西・北西角地 ★子育てグリーン住宅支援事業対象物件です ★太陽光パネル標準装備です ★太陽光発電システムはリース契約になります。リース期間は10年間、毎月の利用料金は9053円(税込)で期間終了後に無償譲渡されます ★敷地内に電柱または支線が入る場合があります ★司法書士は売主指定となります ★区画整理された閑静な住宅街。鴨川地区地区計画 ★上尾道路へのアクセス良好です ★東栄住宅の家造り |
|||||||||
| Bk44575 |
上尾市弁財2−9−17 【不動産 / 中古一戸建て】 |
4,480万円 | 上尾駅 上尾市弁財2丁目 |
− 20分 |
162.63m2 ( 49.19坪 ) 111.97m2 ( 33.87坪 ) |
北西 4m(幅員) 公道 13.6m(接面) |
|
![]() ![]()
|
|
| 上尾市弁財の中古一戸建て ★1998年10月築の旭化成ホームズ施工の注文住宅 ★リフォーム内容(令和7年12月完了)【・洗面化粧台新規交換 ・トイレ新規交換 ・LED照明新規取付 ・クロス張替(壁、天井全て) ・ユニットバス塗装 ・ハウスクリーニング他】 ★オール電化住宅 ★西小学校徒歩8分 ★LDK約17.5帖 ★3SLDKにつき納戸あり(約2.7帖) ★南西側道路に都市ガスの本管がありますが、本物件への引込みはありません。引込みには別途費用がかかります ★司法書士は売主指定となります ★ (弁財地区)★マイカイマート上尾店徒歩6分(約400m) ★浅間台幼稚園徒歩3分(約230m) ★浅間台第三公園徒歩4分(約290m) |
|||||||||
| Bk44609 |
上尾市上尾村1315−8 【不動産 / 新築一戸建て】 |
4,690万円 | 上尾駅 上尾市上尾村 |
− 26分 |
189.75m2 ( 57.39坪 ) 97.71m2 ( 29.55坪 ) |
東 5m(幅員) 公道 9.81m(接面) 北 4m(幅員) 私道 14.3m(接面) |
|
![]() ![]() ![]()
|
|
| 上尾市上尾村の新築一戸建て ★57坪以上!北東角地 ★前面道路は一方通行。脇の道は舗装された私道です ★4LDK ★本件取引には私道権利も付属致します(私道面積:119m²のうち1/6が持分となります) ★敷地西側は埼玉学園となっており、随分広々しているようでした ★小学校・中学校ともに10分以内! ★ヤオヒロ東店、ベルク上尾東店それぞれ徒歩5分! ★ことぶき第二幼稚園徒歩2分! ★第二産業道路へのアクセス良好です ★2026年3月末完成予定 ★飯田産業のオプション ★飯田産業のオプション |
|||||||||
| Bk44466 |
上尾市向山2丁目 1期 【不動産 / 新築一戸建て】 |
4,698万円 | 上尾駅 上尾市向山2丁目 |
− 29分 |
128.26m2 ( 38.79坪 ) 106.28m2 ( 32.14坪 ) |
南東 8m(幅員) 公道 6.8m(接面) 西 6m(幅員) 公道 13.3m(接面) |
|
![]() ![]()
|
|
| 上尾市向山の新築一戸建て ★2方向角地の4LDK ★対面キッチンのLDKは約17帖です ★2階にウォークインクローゼットもあり収納豊富です ★バルコニーは2部屋から出入りが可能です ★駐車スペースは並列で3台可能です ★38坪以上の整形地 ★南西道路に面しているため日当たり良好 ★大谷小学校のほか、今泉小学校(1100m)も選択可能です ★区画整理地内につき 大谷北部第三地区★上尾市民体育館徒歩7分(約500m) ★エンゼル愛児園徒歩4分(約300m) ★コープみらい コープ今泉店徒歩11分(約800m) ★上尾道路近くアクセス良好 ★東栄住宅の家造り |
|||||||||
| Bk44314 |
上尾市原市1780−12 【不動産 / 新築一戸建て】 |
4,798万円 | 沼南駅 上尾市原市 |
− 8分 |
156m2 ( 47.19坪 ) 100.6m2 ( 30.43坪 ) |
北東 6m(幅員) 公道 |
|
![]() ![]() ![]()
|
|
| 上尾市原市の新築一戸建て ★駐車スペース2台分付きの4LDK ★対面キッチンのLDKは約16帖です ★2階は2面バルコニーで日当たり、通風良好です ★リビング、トイレにエコカラットダウンライト付きです ★47坪以上の整形地 ★北東側6m公道に面しています ★はらいち台団地地区の地区計画あり ★沼南駅徒歩8分 ★沼南駅前からバス利用も可能ですが、本数も少なく現実的ではありません。 ★市街化調整区域ですが、集団的宅地の区域につきどなたでも再建築可能です(諸条件有り) ★原市台公園徒歩1分(約76m) ★第二産業道路へのアクセス良好です 東栄住宅の家造り |
|||||||||
| Bk42033 |
上尾市富士見2−19−12 【不動産 / 中古一戸建て】 |
4,980万円 | 上尾駅 上尾市富士見2丁目 |
− 12分 |
156.27m2 ( 47.27坪 ) 106.66m2 ( 32.26坪 ) |
北東 位置指定道路 南東 公道 |
|
![]()
|
|
| 上尾市富士見の中古一戸建て ★駅徒歩12分でこの広さのお住いはすごいですね ★平成27年築の3SLDK ★南東・北東角地です ★1階LDKは21.2帖です ★3SLDKにつき納戸4.2帖あり ★周辺がそれほど新しい住宅地ではない点が気になる方もいらっしゃるかと思いますが、上尾駅徒歩12分、小中学校至近という環境は見逃せませんね ★富士見親水公園徒歩4分(約280m) ★周辺に商業施設が多く生活に便利な立地です |
|||||||||
| Bt42688 |
上尾市瓦葺909−2 【不動産 / 土地】 |
![]() 4,980万円 |
沼南駅 上尾市瓦葺 |
− 20分 |
1904m2 ( 575.96坪 ) |
南 14m(幅員) 公道 33.5m(接面) |
|
![]() ![]() ![]()
|
|
| 上尾市瓦葺の土地 ★広々575坪以上! ★大型トラック駐車場やモータープール、資材置き場などに最適です ★市街化調整区域につき建築できません ★クリニックまたは福祉や沿道サービス業などの公共的な事業用地として、あるいは近くで事業をなさっている方が立ち退きを迫られた場合などやむを得ない事情が認められた際には、建築ができる場合があります。 ★取得目的に建物の建築を含む場合には、上尾市開発許可に関する手引きをご参照下さい ★行政との摺り合わせに行政書士などを利用する際には、可否にかかわらず、着手時に依頼費用などがかかります ★農地のため行政の農地転用許可なしには、取得することすら出来ません ★居宅の用地としてお考えの場合、さらに厳しい制限があります。埼玉県では、市街化調整区域内に長期(20年以上)居住している親族がある場合でも、建築するための土地が一定範囲の親族が所有している土地でない限り、建築が許可されなくなりました(2022年4月より)。そのため親族以外から購入するなどした市街化調整区域の農地でのの居宅建築はほとんど無理だとお考えください。公共移転(公共道路の建築等により転居を余儀なくされること)等が、残された唯一の可能性と言えるでしょう ★ ![]() ★蓮田インターチェンジまで車で約15分! ★国道16号バイパス近くアクセス良好! |
|||||||||
| Bk43928 |
上尾市本町1−9−27 【不動産 / 中古一戸建て】 |
5,280万円 | 上尾駅 上尾市本町1丁目 |
− 12分 |
149.29m2 ( 45.16坪 ) 120.41m2 ( 36.42坪 ) |
南東 4.3m(幅員) 位置指定道路 10.29m(接面) |
|
||
| 上尾市本町の中古一戸建て ★上尾駅徒歩12分の好立地! ★アイ工務店施工の令和3年6月築の築浅物件! ★敷地45坪以上の整形地!日当たり良好です ★延床面積120.41m²の3SLDK。太陽光発電3.55kwを搭載し、ランニングコスト低減に寄与。Panasonic製の室内換気システムを採用し、快適な空気環境を維持できます。収納スペースが多く、ファミリーに適した設計です ★3SLDKにつき納戸があります ★敷地南側には水路があります ★本地区は、上尾市洪水ハザードマップ・水害ハザードマップ・内水ハザードマップのいずれにも浸水想定区域としては該当していません ★中央小学校徒歩9分 ★上尾市役所徒歩5分(約350m) ★上尾幼稚園徒歩10分(約700m) ★国道17号アクセス良好!商業施設や飲食店多数あり生活便利 |
|||||||||
| Bt40704 |
上尾市上尾下1726−1 【不動産 / 土地】 |
6,000万円 | 上尾駅 上尾市上尾下 |
− 29分 |
2211.26m2 ( 668.9坪 ) |
北 6m(幅員) 公道 位置指定無 25.3m(接面) |
|
![]() ![]()
|
|
| 上尾市大字上尾下の事業用地 ★668坪以上! 市街化調整区域につき建築できません上尾市都市計画法に基づく開発行為等の許可の基準に関する条例第6条(2)等を満たす時には住宅の建築が認められる場合があります ★建築について詳しくは上尾市開発許可に関する手引きをご参照下さいませ。目的の用途をお聞かせいただけましたら、ある程度はこちらでお調べさせていただけます ★事業系で建築をご検討中の方にとっては周辺で既に事業を行っている事などかなり厳しい条件となります ★建築について詳しくは上尾市開発許可に関する手引きをご参照下さいませ ★対象地の西側は高架線下(約364m²)地役権設定あり ★埼玉県立武道館、埼玉アイスアリーナ目の前 ★17号バイパスへのアクセス良好です |
|||||||||
| Bk42935 |
上尾市栄町6−18 【不動産 / 中古一戸建て】 |
6,800万円 | 上尾駅 上尾市栄町 |
− 28分 |
422.5m2 ( 127.8坪 ) 176.79m2 ( 53.47坪 ) |
東 6.5m(幅員) 公道 |
|
![]() ![]() ![]()
|
|
| 上尾市栄町の中古一戸建て ★2世帯住宅仕様の注文住宅 ★1階2SLDKと2階3LDK ★各居室内収納のほか約3.9帖の納戸もあり収納豊富です ★南東側5.9m公道に約16.4m面しています ★栄町公園徒歩2分 ★イオンモール上尾も近いです徒歩9分(約650m) |
|||||||||
| Bt43439 |
上尾市大谷本郷853 【不動産 / 土地】 |
7,000万円 | 上尾駅 上尾市大谷本郷 |
− 27分 |
720m2 ( 217.8坪 ) |
東 6.1m(幅員) 公道 26.8m(接面) |
|
![]() ![]()
|
|
| 上尾市大谷本郷の土地 ★217坪以上 ★前面道路の広々しています ★販売用に入手した資料に「高低差あり 道路面より約60cm高いです」と書いてありましたが、それよりも裏手にある隣地との高低差が気になりました。がけ条例の対象にはならないのでしょうか。気になります。前向きにこ゜検討なされる場合には詳しくお調べいたしますのでご相談ください ★上下水道、都市ガスそれぞれ引込管はありません ★現況でのお取引となります ★境界確定は売主にて実施します ★農地法5条の届け出が必要です ★東側公道約6.1mに約26.8m面しています ★大谷小学校徒歩8分、南中学校目の前! ★上尾市大谷公民館徒歩4分(約250m) ★みつばちBunBun保育園徒歩3分(約240m) |
|||||||||
| Bt44994 |
上尾市本町4−1−31 【不動産 / 土地】 |
8,500万円 | 上尾駅 上尾市本町4丁目 |
− 12分 |
338.84m2 ( 102.49坪 ) |
南西 4m(幅員) 15.8m(接面) |
![]()
|
||
| 上尾市本町の土地 ★上尾駅徒歩12分の好立地 ★102坪以上! ★こんな土地が購入できるなら、そもそも物件探しに苦労なんてしませんね。すごい! ★販売開始時点では区画図がありませんがほぼ整形です。裏に小さな路地が有る様ですが、あまり関係ないでしょう ★南西側4m公道に15.8m面しています ★現況古屋あり 解体更地渡しです ★建築条件はないのでお好きな住宅メーカーで建築が可能です ★あげお富士住建ホール徒歩5分(約350m) ★二ツ宮中央公園徒歩10分(約750m) ★17号バイパスへのアクセス良好です |
|||||||||
| Bt33366 |
桶川市坂田東1−40−3 【不動産 / 土地】 |
9,180万円 | 桶川駅 桶川市坂田東1丁目 |
− 31分 |
551.58m2 ( 166.85坪 ) |
北東 6m(幅員) 公道 16.983m(接面) 北西 6m(幅員) 公道 32.937m(接面) |
|
![]() ![]()
|
|
| 桶川市坂田東の土地 ★区画整理地内の二方向道路角地! ★広々166坪以上の整形地(分割可) ★現況:敷地の一部に平屋有り。賃貸中ですが、引渡時までに退去予定となっています。建物は解体更地渡しとなります ★前面道路に上下水道、都市ガスの配管が埋設されています ★区画整理地につき地区計画有り(最低敷地120m²など) ★桶川東小学校徒歩7分 ★マミーマート 桶川坂田店徒歩1分(約43m)、セリア 桶川坂田店徒歩3分(約190m)で買い物便利です ★カスミ フードスクエア フレスポ桶川坂田店徒歩9分(約700m) ★坂田原南公園徒歩2分(約140m) ★国道17号アクセス良好!商業施設や飲食店多数あり生活便利 ![]()
|
|||||||||







Bt45227



